REF : Cha178231
statistiques ID

FAMICITY 2
**
07 83 92 96 43

I accept the conditions of use
* required fields
​By sending your request, you accept ​Conditions of use

Ad Apartment Cha178231

375 000 € * (H.C.V)

​Purchase Apartment LYON (69006)

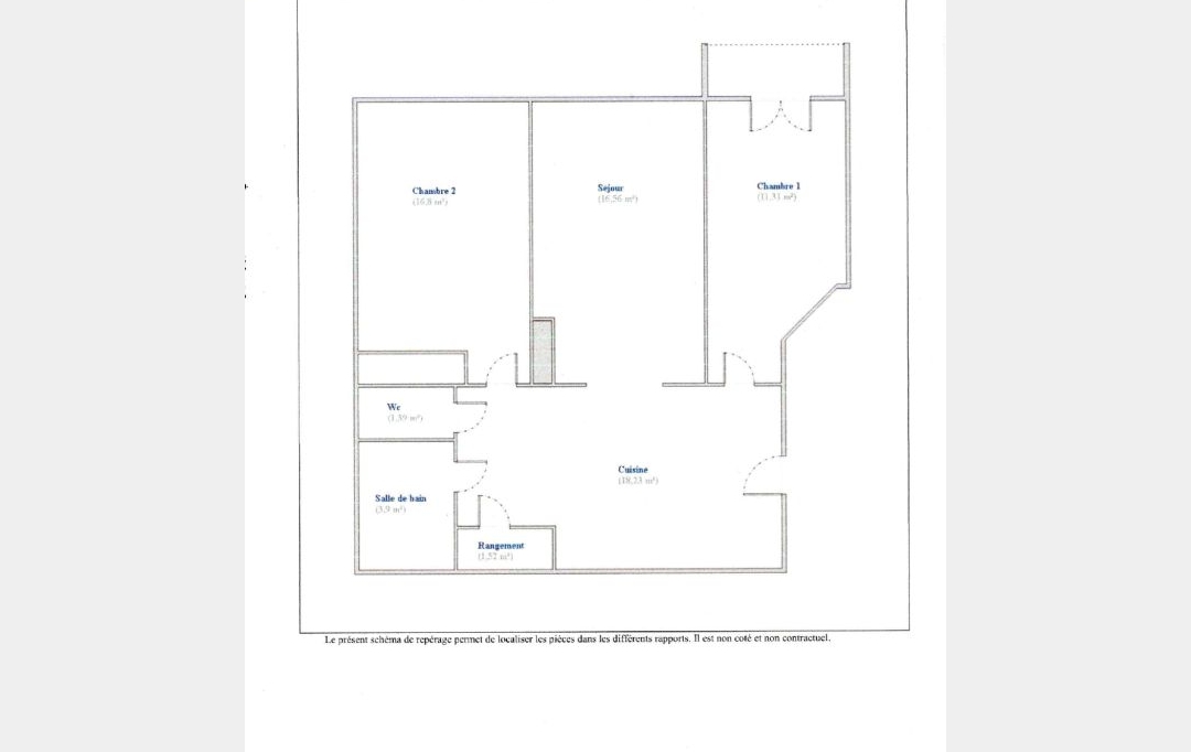
Appartement situé au Brotteaux dans le 6ème arrondissement de Lyon - à seulement 150m de l'entrée principale du Parc de la Tête d'Or cet appartement de 70m2 est un véritable havre de paix. Au 9ème et dernière étage - il offre une vue dégagée et imprenable sur Lyon. Magnifique séjour très lumineux avec parquet chêne au sol - 2 chambres - Cuisine équipée - Salle de bain - WC séparé . Equipement et avantages: Grand balcon pour profiter de la vue et de la lumière - Cave pour stocker vos affaires personnelles - Chauffage urbain pour une gestion efficace des dépenses énergétiques. Localisation: Proximité immédiate du parc de la Tête d'Or pour des activités en plein air et pour une qualité de vie exceptionnelle. N'hésitez pas à me contacter pour une visite et découvrir ce bien par vous même - Mentions légales : Proposé à la vente à 375000 Euros (honoraires à la charge du vendeur) - Classe-Energie F : 412 kWh.m2.an - Logement à consommation énergétique excessive - Montant estimé des dépenses annuelles d'énergie pour un usage standard compris entre 2340 et 3210 Euros - Bien en copropriété - Charges annuelles : 2760 Euros/an (soit 230 Euros/mois) - FAMICITY 2 - - Pour plus d'informations, contactez notre agence au 06 29 04 30 65

Mandate N° : 000540

​Features ad Cha178231

​Living area
70 m 2
Room number
3
Bedroom number
2
​Floor
9/9
​Heating
Chauffage urbain Collectif
​Orientation
Est
​Year
1954
DPE classé

F

412.00 (KWH/M2/AN)
GES classé

F

77.00 (KWH/M2/AN)
Property in condominium
Yes
Number of lots
N.C (greater than 2)
Process of the syndicate of co-owners
no judicial proceedings
Price Agency fees included
375 000 €
Fees
Seller Fee
Condominium Charge
2 760 € soit ( 230.00 € / mois)

Energy performance ad Cha178231

F

greenhouse gases ad Cha178231

F

* (H.C.V) : Seller Fee
** Independent real estate agent

Ad ID178231 - Mandate N° : 000540

For sale Appartement P3
LYON 6ème 3 pieces 70 m2
375 000 €


Appartement P3   LYON  70 m2 375 000 €

Appartement situé au Brotteaux dans le 6ème arrondissement de Lyon - à seulement 150m de l'entrée principale du Parc de la Tête d'Or cet appartement de 70m2 est un véritable havre de paix. Au 9ème et dernière étage - il offre une vue dégagée et imprenable sur Lyon. Magnifique séjour très lumineux avec parquet chêne au sol - 2 chambres - Cuisine équipée - Salle de bain - WC séparé . Equipement et avantages: Grand balcon pour profiter de la vue et de la lumière - Cave pour stocker vos affaires personnelles - Chauffage urbain pour une gestion efficace des dépenses énergétiques. Localisation: Proximité immédiate du parc de la Tête d'Or pour des activités en plein air et pour une qualité de vie exceptionnelle. N'hésitez pas à me contacter pour une visite et découvrir ce bien par vous même - Mentions légales : Proposé à la vente à 375000 Euros (honoraires à la charge du vendeur) - Classe-Energie F : 412 kWh.m2.an - Logement à consommation énergétique excessive - Montant estimé des dépenses annuelles d'énergie pour un usage standard compris entre 2340 et 3210 Euros - Bien en copropriété - Charges annuelles : 2760 Euros/an (soit 230 Euros/mois) - FAMICITY 2 - - Pour plus d'informations, contactez notre agence au 06 29 04 30 65

Caractéristiques
​Living area 70 m2
Room number 3
Bedroom number 2
​Floor 9/9
​Heating Chauffage urbain Collectif
​Orientation Est
​Year 1954
DPE classé

F

412.00 (KWH/M2/AN)
GES classé

F

77.00 (KWH/M2/AN)



Réseau IMMO-DIFFUSION

71100 CHALON-SUR-SAONE

Réseau IMMO-DIFFUSION Numero vert centrale immobilière de Professionnels indépendants IMMO-DIFFUSION

Adhérent du Réseau IMMO DIFFUSION

IMMO-DIFFUSION