REF : Cha178332
statistiques ID

FAMICITY 2
**
07 83 92 96 43

J'accepte les conditions d'utilisations
* champs requis
A l'envoi, vous acceptez les conditions d'utilisation

Annonce Appartement Cha178332

284 000 € * (H.C.V)

Vente Appartement LYON (69007)

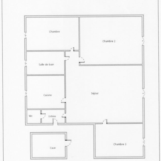
PREMIER ACHAT - Idéal Primo Accédant. Quartier jean Jaurès dans le 7ème arrondissement de Lyon - cet appartement T4 de 66m2 est fait pour ceux qui cherche à devenir propriétaire Description de l'appartement: 1 salon lumineux pour des moments de détente - 1 cuisine indépendante pour plus d'intimité - 3 chambres spacieuses avec placards intégrés - 1 salle de bain fonctionnelle - 1 WC séparé pour plus de confort. Equipement et avantage: Cave de 9m2 pour stocker vos affaires personnelles - Parking extérieur sécurisé - chauffage gaz avec chaudière individuelle neuve pour une efficacité énergétique optimale - volets roulants électriques pour une sécurité et un confort supplémentaire. Travaux récents: Appartement entièrement rénové et repeint pour un cadre de vie agréable et moderne. N'hésitez pas à me contacter pour une visite et découvrir ce bien par vous même. - Mentions légales : Proposé à la vente à 284000 Euros (honoraires à la charge du vendeur) - Bien en copropriété - Charges annuelles : 1080 Euros/an (soit 90 Euros/mois) - FAMICITY 2 - - Pour plus d'informations, contactez notre agence au 06 29 04 30 65

Mandat N° : 000534

Caractéristiques annonce Cha178332

Surface hab.
66 m 2
Nombre de pièces
4
Nombre de chambres
3
Niveau/étage
2/4
Chauffage
Gaz Individuel
Exposition
Traversant Ouest-Est
Année
1960
DPE classé

E

229.00 (KWH/M2/AN)
GES classé

E

56.00 (KWH/M2/AN)
Bien en copropriété
Oui
Nombre de lots
N.C (supérieur à 2)
Syndicat des copropriétaires
Aucune procédure en cour
Prix de vente
284 000 €
Honoraires
Honoraires charge vendeur
Charge de copropriété
1 080 € soit ( 90.00 € / mois)

Performance energétique annonce Cha178332

E

Gaz à effet de serre annonce Cha178332

E

* (H.C.V) : Honoraires charge vendeur
** Agent commercial indépendant

Annonce ID178332 - Mandat N° : 000534

Vente Appartement P4
LYON 7ème 4 pieces 66 m2
284 000 €


Appartement P4   LYON  66 m2 284 000 €

PREMIER ACHAT - Idéal Primo Accédant. Quartier jean Jaurès dans le 7ème arrondissement de Lyon - cet appartement T4 de 66m2 est fait pour ceux qui cherche à devenir propriétaire Description de l'appartement: 1 salon lumineux pour des moments de détente - 1 cuisine indépendante pour plus d'intimité - 3 chambres spacieuses avec placards intégrés - 1 salle de bain fonctionnelle - 1 WC séparé pour plus de confort. Equipement et avantage: Cave de 9m2 pour stocker vos affaires personnelles - Parking extérieur sécurisé - chauffage gaz avec chaudière individuelle neuve pour une efficacité énergétique optimale - volets roulants électriques pour une sécurité et un confort supplémentaire. Travaux récents: Appartement entièrement rénové et repeint pour un cadre de vie agréable et moderne. N'hésitez pas à me contacter pour une visite et découvrir ce bien par vous même. - Mentions légales : Proposé à la vente à 284000 Euros (honoraires à la charge du vendeur) - Bien en copropriété - Charges annuelles : 1080 Euros/an (soit 90 Euros/mois) - FAMICITY 2 - - Pour plus d'informations, contactez notre agence au 06 29 04 30 65

Caractéristiques
Surface hab. 66 m2
Nombre de pièces 4
Nombre de chambres 3
Niveau/étage 2/4
Chauffage Gaz Individuel
Exposition Traversant Ouest-Est
Année 1960
DPE classé

E

229.00 (KWH/M2/AN)
GES classé

E

56.00 (KWH/M2/AN)



Réseau IMMO-DIFFUSION

71100 CHALON-SUR-SAONE

Réseau IMMO-DIFFUSION Numero vert centrale immobilière de Professionnels indépendants IMMO-DIFFUSION

Adhérent du Réseau IMMO DIFFUSION

IMMO-DIFFUSION